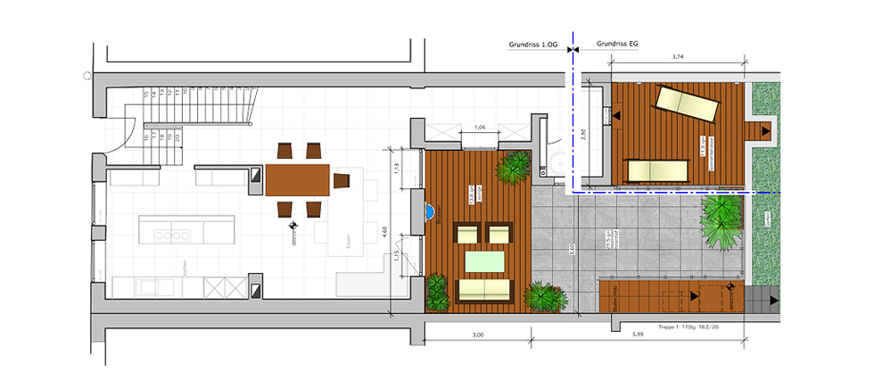
Sonnendeck und Terrasse im Innenhof eines restaurierten Altbaus sollten durch eine Treppenanlage und der entsprechenden Materialwahl zu einem „entspannten“ Ensemble gefügt werden.